Fosse Way, Leamington Spa

3 bedroom Plot - for sale

£500,000

  • 3 bedroom
  • 3 bathroom
  • 2 reception

Key Features

  • Barn with full planning consent
  • Kitchen / dining / family room
  • Further reception room
  • Three bedrooms
  • Three bathrooms
  • Generous curtilage around property
  • Open field views
  • Additional land available via separate negotiation
  • Viewings strictly by appointment

Description

PLANNING

Full planning consent has been granted for - Change of use of barn to dwelling house (Self-build) and associated works at Fosse Farm, Fosse Way, Offchurch, Leamington Spa, CV33 9BB (Application Reference W/25/0454). Interested parties must liaise with Warwick District Council Planning Team over any planning queries.

VIEWINGS

Viewings should be arranged through Etta James on 01926 898080 and are strictly by appointment for privacy reasons.

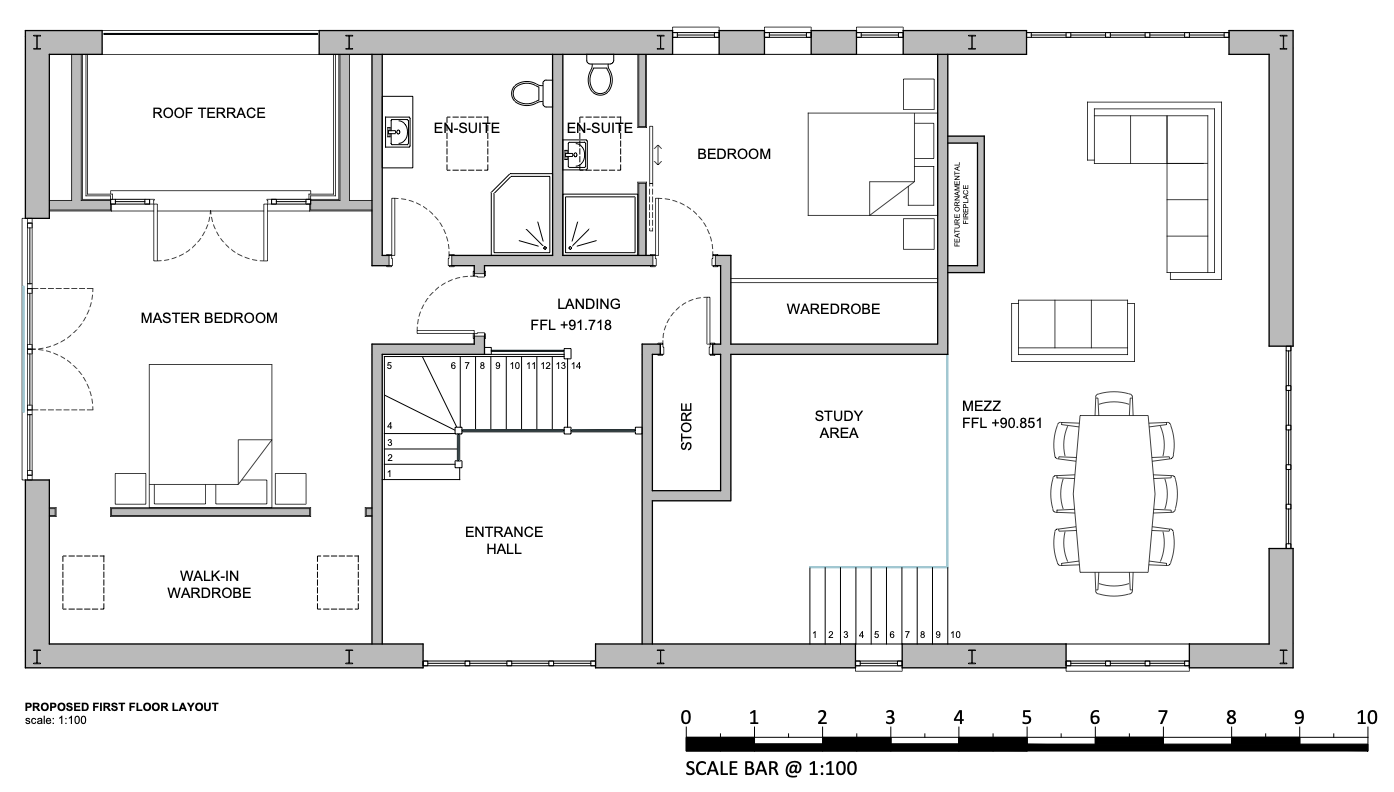
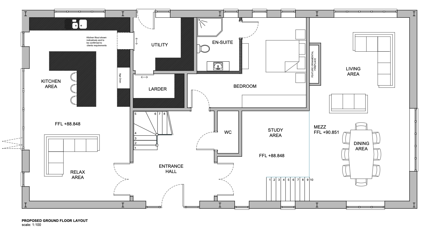
PLANS & ELEVATIONS

The proposed layout plans and elevations are provided for guidance purposes only, and are not to scale. For full information please visit the planning portal by clicking the link below.

WAYLEAVES, EASEMENTS, COVENANTS & RIGHTS OF WAY

The land is sold subject to and with the benefit of all covenants, rights of way, wayleaves and easements that may exist over the property, whether or not mentioned in these sales particulars.

ADDITIONAL LAND

There is a further 1.6 acres of land available via separate negotiation, adjoining the land assigned to this barn.


Location


Floorplan

Floorplan Floorplan

EPC


Etta James

71 Cubbington Road, Leamington Spa, CV32 7AQ